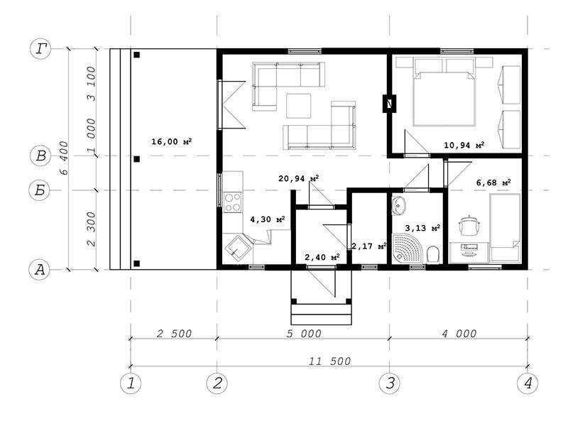
УСК-111 Одноэтажный дом 57 м2
| ОБЩАЯ ПЛОЩАДЬ, м²: | 57,6 | |
| ФУНДАМЕНТ: | свайно-винтовой | |
| НЕСУЩИЕ СТЕНЫ: | деревянный каркас | |
| ПЕРЕКРЫТИЯ: | деревянные балки | |
| КРОВЛЯ: | металлочерепица | |
| НАРУЖНАЯ ОТДЕЛКА: | сайдинг, имитация бруса | |
| Цена дома, руб. от | 518 400 | |
Заказать каркасный дом по данному проекту Назад к каталогу проектов
