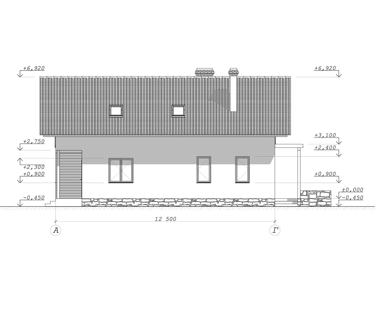
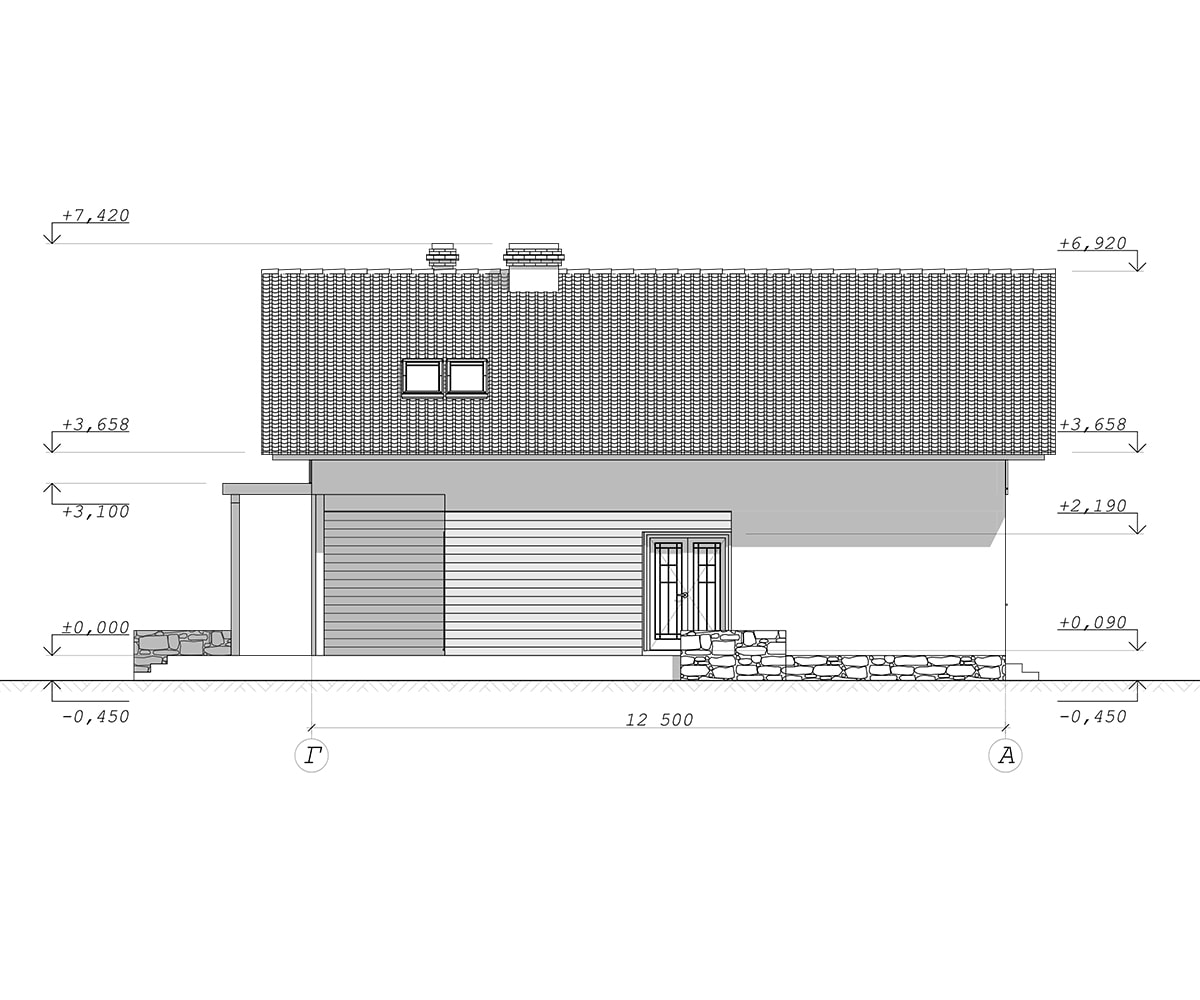
УСК-106 Двухэтажный дом 222 м2
| ОБЩАЯ ПЛОЩАДЬ, м²: | 222,5 | |
| Классический дом с мансардным этажом предназначен для семьи из 3-4 человек. На втором этаже 3 спальни, балкон и гардеробная. | ||
| ФУНДАМЕНТ: | свайно-винтовой | |
| НЕСУЩИЕ СТЕНЫ: | деревянный каркас | |
| ПЕРЕКРЫТИЯ: | деревянные балки | |
| КРОВЛЯ: | металлочерепица | |
| НАРУЖНАЯ ОТДЕЛКА: | сайдинг, имитация бруса | |
| Цена дома, руб. от | 2 002 500 | |
Заказать каркасный дом по данному проекту Назад к каталогу проектов
