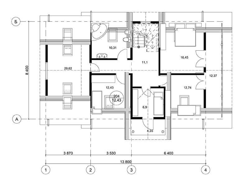
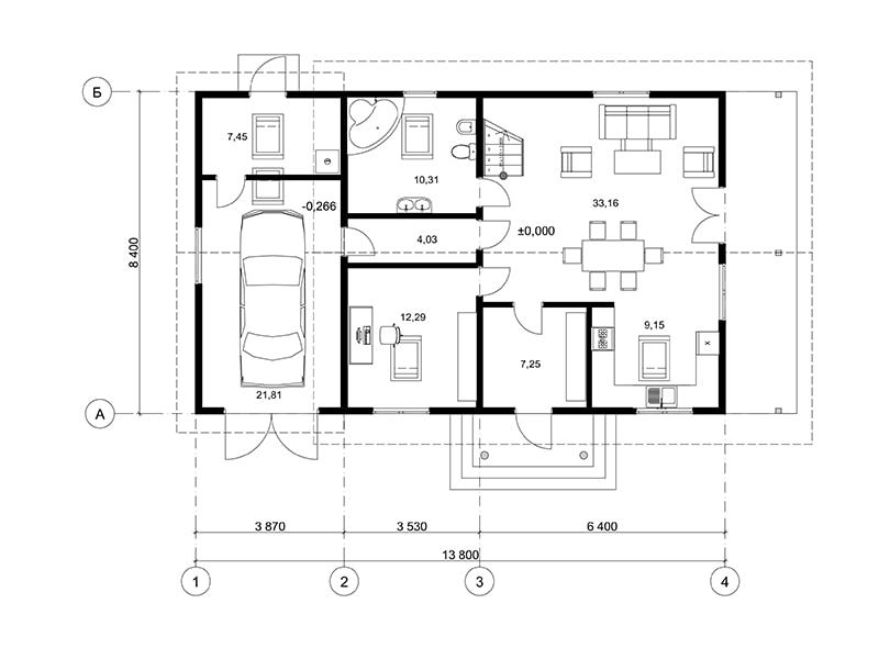
УСК-105 Двухэтажный дом 232 м2
| ОБЩАЯ ПЛОЩАДЬ, м²: | 232 | |
| Шикарный дом для большой семьи. Возможно исполнение без гаража. | ||
| ФУНДАМЕНТ: | свайно-винтовой | |
| НЕСУЩИЕ СТЕНЫ: | деревянный каркас | |
| ПЕРЕКРЫТИЯ: | деревянные балки | |
| КРОВЛЯ: | металлочерепица | |
| НАРУЖНАЯ ОТДЕЛКА: | сайдинг, имитация бруса | |
| Цена дома, руб. от | 2 088 000 | |
Заказать каркасный дом по данному проекту Назад к каталогу проектов
