УСК-102 Двухэтажный дом 168 м2
| ОБЩАЯ ПЛОЩАДЬ, м²: | 168 | |
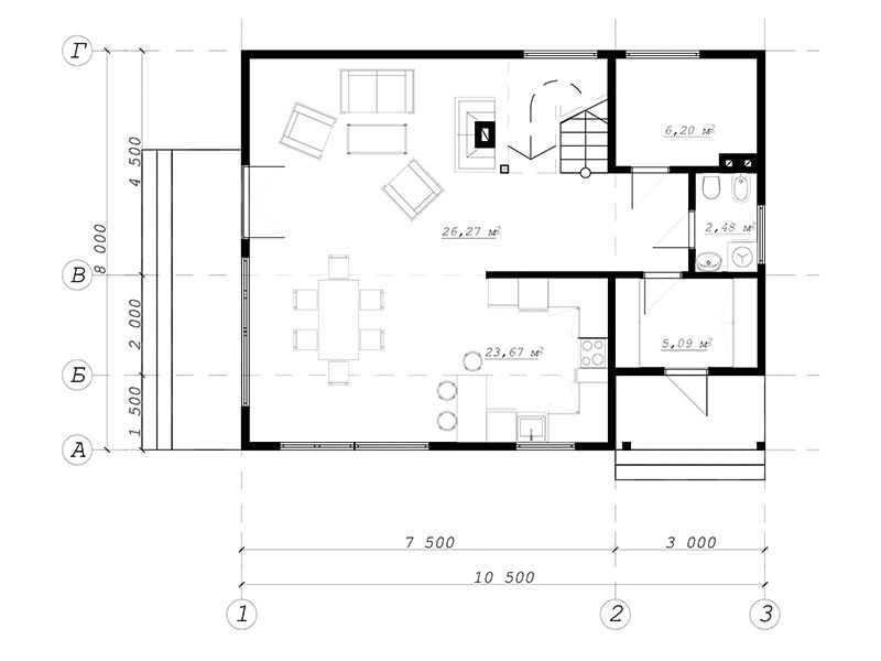
| Большой жилой дом с мансардным этажем предназначен для семи из 4-5-х человек. На втором этаже 2 спальни и детская комната и 2 санузла. | ||
| ФУНДАМЕНТ: | свайно-винтовой | |
| НЕСУЩИЕ СТЕНЫ: | деревянный каркас | |
| ПЕРЕКРЫТИЯ: | деревянные балки | |
| КРОВЛЯ: | металлочерепица | |
| НАРУЖНАЯ ОТДЕЛКА: | сайдинг, имитация бруса | |
| Цена дома, руб. от | 1 512 000 | |
Заказать каркасный дом по данному проекту Назад к каталогу проектов
